AVENIR FOCUS
TASSIN-LA-DEMI-LUNE (69) – Mission d’aménagement clé en main
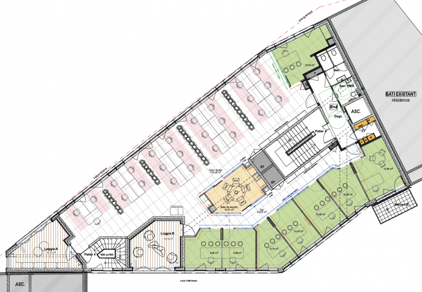
Aménagement et suivi d’exécution des nouveaux bureaux de l’entreprise Avenir Focus, en dialogue avec le promoteur PROMOVAL (à l’origine du projet immobilier).
Surfaces : 700m2 de bureaux – 130m2 de terrasses et loggias
Début du chantier : Mars 2025
Durée de chantier prévisionnelle : 4 mois


